Aktuelle Projekte & Bauvorhaben in Berlin
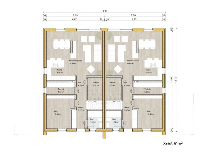
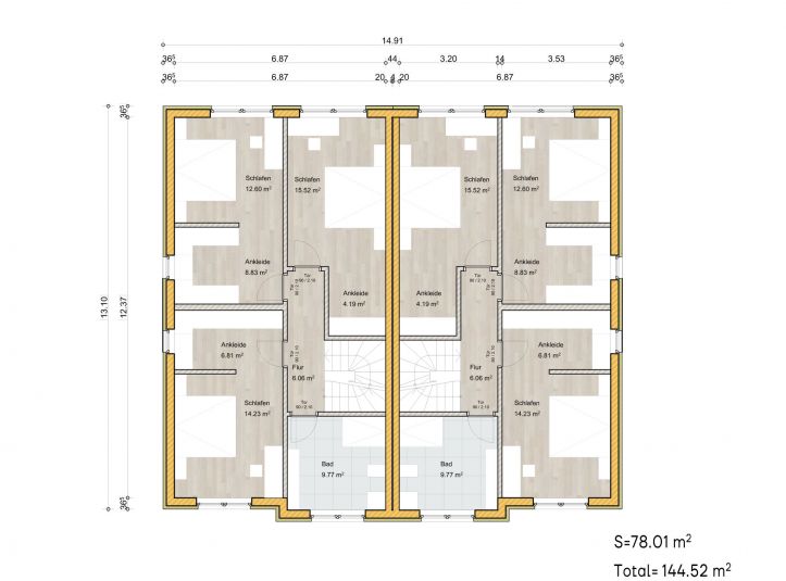
Bauvorhaben: „Am Weißenberg“
-
Doppelhaushälften in Holzständerwerkbauweise.
-
Ausgeführt als Niedrigenergiehäuser.
-
Jede Einheit verfügt über ca. 144,52 m2 Wohnfläche.
-
Die Grundstücksgrößen liegen jeweils bei rund 350 m2.
-
Aktuelle Preisspannte 2.800 – 3.000 € pro m2 Wohnfläche inklusive Grundstück.





Ausstattung
Für die Ausstattung bieten wir den Käufern verschiedene Auswahlmöglichkeiten, damit die Häuser individuell gestaltet werden können. Zur Auswahl stehen jeweils drei Varianten für:
- Türblätter inklusive Zargen
- Parkettböden inklusive Sockelleisten
- Wandfliesen (30 × 60 cm)
- Bodenfliesen (30 × 60 cm)
Bei besonderen Wünschen können wir auch andere Materialien einbauen – das wird individuell abgestimmt, da je nach Auswahl zusätzliche oder geringere Kosten entstehen können.
Jedes Haus wird standardmäßig mit einer PV-Anlage und einer Luft-Wärmepumpe ausgestattet, wodurch die Gebäude einen modernen und energieeffizienten Standard erfüllen.
Die Außenanlagen sind nicht im Grundumfang enthalten. Die Käufer können diese selbst gestalten oder, wenn gewünscht, übernehmen wir die Ausführung nach individueller Absprache.
Vorteil nutzen!
Wir verfügen über eine eigene Produktionsstätte.
Wir von BAAG GmbH verfügen über eine eigene Produktionsstätte im Kosovo, in der wir unsere Holzhäuser und Modulhäuser selbst fertigen. Das bedeutet, dass wir nicht auf externe Anbieter angewiesen sind. Dadurch können wir:
- Eine gleichbleibend hohe Qualität sicherstellen
- Flexibel auf Kundenwünsche eingehen
- Lieferzeiten zuverlässig einhalten
- Baukosten deutlich besser kontrollieren
Aktuelle Baustellen und Projekte, an denen unser Team derzeit mit voller Energie arbeitet.
Die BAAG ist bundesweit tätig und Ihr zuverlässiger Partner mit Hauptsitz in Berlin. Als erfahrenes Bauunternehmen realisieren wir Projekte vom Rohbau bis zur schlüsselfertigen Übergabe. Wir planen, koordinieren und setzen Neubau-, Sanierungs- und Ausbauvorhaben in gewünschter Qualität, präzise, sauber und termingerecht um.